クローバータウン西宮市仁川町

クローバータウン西宮市仁川町

西宮市仁川町

  • 土地
  • 戸建
  • クローバータウンシリーズ
  • 売物件
  • 売主

価格

6,180~6,970万円

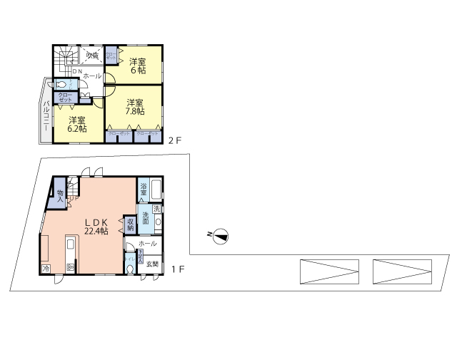
物件情報

  • 土地面積:439.77㎡
  • 南向き
  • 新築戸建て
  • 建築条件付
  • 南向き

アクセス

阪急今津線「仁川」駅徒歩約8分

◆新築一戸建分譲!土地建物セット価格6,180万円~!

◆現地販売会開催中!

◆阪急今津線「仁川」駅徒歩約8分!

◆第一種低層住居専用地域の閑静な住宅街に位置します!

◆販売区画:4区画!

取扱物件のカテゴリ一覧